

Georges Batzios建筑事务所为希腊设计了一个新的文化中心“Konaki Averof”,该建筑涉及到它的位置和历史,成为一个现代的可持续性建筑。建筑位于色萨利平原,先前现存的19世纪的建筑和其余零零散散的小屋坐落在一起,等待着被赋予新生。通过将“建筑”与“农业”这两个元素相结合,一个与当地文化和自然条件相符的,具有独特性能的建筑诞生了。
Georges Batzios建筑事务所设计的这个项目,基于发展自北欧的当代建筑技术,用秸秆覆盖建筑立面。

内部
这种新式的建筑外壳包含40厘米的压缩秸秆,外侧为一层透明的隔热膜,内侧为石膏板。独特的保温能力可以为建筑减少高达95%的空调需求。新建筑的这种能源效率使其成为被动式节能建筑。最大化的节能效率和回收再利用的天然特点使整个项目成为低成本生物气候和可持续建筑的典范。

内部

北立面

南立面

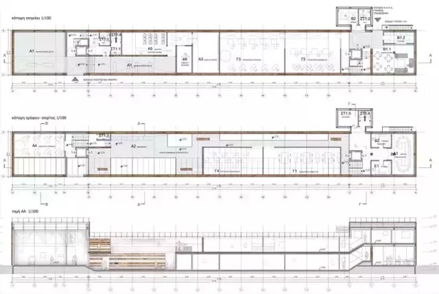
楼层平面和剖面

外部细节

19世纪的历史建筑

现在的历史建筑

未来的历史建筑

构造图解

立面细节